協力会社の皆様へ
採用情報
アクセス
お問い合わせ
事業情報
建築請負事業
戸建分譲事業
分譲マンション事業
賃貸管理事業
その他事業
事例紹介
建築請負事業
戸建分譲住宅
物件情報
会社情報
企業概要
沿革
アクセス
ルーツ
メルディアDCアカデミー
CM
IR情報
過去のIR情報
電子公告
HOME
>
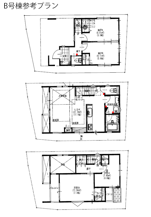
syonai-planb
syonai-planb
|
←
syonai-planb
2020/04/07
←
→
お問い合わせ
協力会社の皆様へ